Встроенный шкаф-купе (пример расчёта)
Высота: 2500 мм.
Ширина: 1900 мм.
Глубина: 600 мм.
Обрамление дверей — Шампань (Оптима)
Цвет видимых частей шкафа-купе — под дерево, наполнение — под дерево.
Шкаф без задней стенки, без пола и без одной боковой.
Расчет дверей шкафа-купе. При расчете дверей шкафа-купе необходимо помнить, что по технологии на каждую пару дверей обязателен нахлест, который составляет в данном случае 20 мм и регулировочный зазор по высоте не менее 45 мм. Следует так же помнить, что во всех случаях необходимо учитывать толщину ДСП боковых стенок и фальшпанелей шкафа-купе (16 мм).
Формула расчета ширины дверей шкафа-купе выглядит так: Высота проема (2484 мм) — регулировочный зазор (45 мм) = 2439 мм (высота двери) Ширина проема (1884 мм) + нахлест (20 мм) / на количество дверей (2 шт.) = 952 мм (ширина двери).
Чтобы узнать стоимость данной двери, нужно найти в «Таблице расчета» соответствующую группу дверей: Дверь-купе «Оптима» (Раум+) ДСП, в графе «Размер 1» проставить высоту двери 2439 мм, в графе «Размер 2» ширину 952 мм, в графе «Кол-во» — количество, в последней графе появиться стоимость дверей = 8749 руб.
Для дверей-купе необходим комплект двухполосных направляющих, 700 р./п.м. Для расчета стоимости направляющих в строке К-т направляющих «Оптима» (Раум+) в соответствующих графах проставляем длину и количество. Получаем 1319 руб.
Расчет корпуса шкафа. В случае корпусного шкафа требуются две боковые панели, крыша, пол, задняя стенка. Рассматриваемый шкаф — «частично встроенный», из корпусных элементов требуется только одна боковая панель и крыша. Все детали из ДСП считаются по площади. Следовательно, формула расчета боковой стенки равна: Высота шкафа (2500 мм — 16 мм(толщина крыши) = 2484 мм) х на глубину (600 мм) х стоимость ДСП 16 мм «Egger» панель. 28 цветов дерева (957 руб/кв.м.) и прибавляем стоимость кромки ПВХ 2 мм (55 р./м.п.).
В «Таблице расчета» в строке ДСП 16 мм «Egger» панель. 28 цветов дерева в соответствующих графах проставляем размеры боковой панели: высота/длина, ширина/глубина, количество. В последней графе видим стоимость с учетом ПВХ 2 мм = 1563 руб. Так же рассчитывается крыша(потолок) шкафа: 1900 х 600 х 1 х (957 (+ПВХ)) = 1195 руб.
Расчет внутреннего наполнения из ДСП. Двери-купе занимают 100 мм от глубины шкафа. Следовательно, перегородка на 100 мм меньше в глубину, чем боковая стенка шкафа-купе: габаритная глубина 600 мм — 100 мм = 500 мм, высота шкафа 2500 мм — 16 мм(толщина крыши) = 2484 мм. Полки рассчитываются за вычетом толщин боковых панелей и перегородок: 1900 (габаритная ширина) — 16 (боковая панель) — 16 (перегородка) = 1868/2 = 934 мм при глубине 500 мм. В «Таблицу расчета» размеры и количество проставляются аналогично корпусным деталям, только для экономии можно изменить цвет ламината (ДСП 16 мм «Egger» БЕЛЫЙ — 736 р./кв.м.). Стоимость перегородки = 1051 руб. и 5шт. полок = 1870 руб.
Штанга. Ширина проема шкафа-купе, где установлена штанга для одежды (934 мм) х стоимость погонного метра штанги с креплением. В «Таблице расчета», строка — «Вешало труба-круг. хром с крепл.», проставляем длину и количество. Получаем 286 руб.
Сетчатая полка для обуви. Сетчатое наполнение рассчитывается по стоимости погонного метра. Ко всем сетчатым полкам требуются дополнительные крепления. В данном случае нам понадобится обувная сотовая полка с креплением. Ширина проема шкафа-купе, где установлена полка для обуви (934 мм) х стоимость погонного метра(515 р.) + комплект креплений для сотовой обувной полки (148 р.). В «Таблице расчета», строка — «Полка обувная с креплением», проставляем длину и количество. Получаем 629 руб.
Последним пунктом в расчете шкафа-купе является подсчет «шлегеля» — противопыльных щеток(55 р./п.м.), «позиционеров»(100 р./шт.) и «мебельных уголков»(14 р./шт.). В данном варианте шкафа достаточно 32 уголка(448 руб.). Эти элементы в «Таблице расчета» рассчитываются автоматически (уголки обязательны) = 1185 руб.
Общая стоимость встроенного шкафа-купе алюминиевой системы «Оптима» (Раум+), рассматриваемого в данном примере с учетом доставки и монтажа, без учета скидок, составит: 17952 руб. + Установка 12% (но не менее 1500 руб.) + Доставка = 21004 руб. Действует система скидок до 15%
Подбор фурнитуры
Разные элементы, относящиеся к фурнитуре, должны быть привлекательными и качественными. Их дизайн и расцветка должны подходить к стилистике шкафа. К фурнитуре относится:
- направляющие, стопоры и ролики для создания раздвижной системы, дающей возможность комфортно открывать или закрывать шкаф;
- профиль, который может быть стальным или алюминиевым;
- крепления для полок или других систем хранения, причем желательно покупать вместо устаревших полкодержателей стяжечную систему, состоящую из флиппера и штока;
- крепежи для соединения частей шкафа, к которым относятся шурупы, саморезы, конфирматы, гвозди для мебели и крепления для штанг.
Проектирование шкафов купе считается достаточно специфическим процессом. Во время его осуществления надо учесть размеры будущей конструкции, ее дизайн и место, где планируется ее устанавливать. От правильности формирования проекта зависит надежность, долговечность и стойкость полученной мебели. Первоначально делаются чертежи основных частей конструкции, после чего формируется сборочный проект.
Ролики
Направляющие
Профиль
Фурнитура
Описание чертежей
Перед началом сборки любого предмета мебели необходимо создать определённую схему в виде чертежа. Следует тщательно выверить размеры, с обязательным указанием всех параметров как внешней стороны, так и внутри конструкции, при этом обязательно указывая толщину каждой перегородки.

При составлениии чертежа немаловажно заранее соблюдать определённые стандарты размеров: например, оптимальное расстояние между полками рекомендуется оставлять в 30-40- см, а глубина выдвижного ящика должна быть не более 50-55 см

Перед созданием чертежа необходимо определиться с главными характеристиками, которыми будет обладать будущий шкаф-купе:
- высота, ширина и глубина;
- высота антресолей, если они запланированы;
- сколько в шкафу будет дверей, ящиков и других отделов;
- какое наполнение планируется: ящики, перекладины, полки и т. д.
После этого чертится эскиз будущего шкафа. При наличии опыта и умения рисовать, чертёж можно сделать самостоятельно, просто используя лист бумаги. Есть и простое решение для тех, кто не силён в рисовании: специальные компьютерные программы, в которые будет достаточно только внести определённые данные, а компьютер выдаст уже готовый полноценный чертёж. Качество и точность такого чертежа настолько высоки, что с его помощью можно смело приниматься собирать шкаф самостоятельно.


Далее предлагается небольшое руководство, с помощью которого можно самостоятельно сделать дома небольшой шкаф-купе встроенного типа, помещённый в небольшую нишу в прихожей.
Изготовление деталей шкафа в мастерской
Следующий шаг – изготовление деталей шкафа в мастерской. Чтобы в мастерской не пришлось объяснять «на пальцах», что же Вам нужно, достаточно заранее распечатать спецификацию всех элементов и их чертежи и отдать мастерам. Кроме того, Базис может сделать еще и карту раскроя, за которую в мастерской требуют отдельную плату.
Для этого нужно просто воспользоваться модулем Базис-Раскрой, задав размеры исходных листов ДСП. Эта карта представляет собой выкройку, по которой из листа определенного размера будут вырезаться конструктивные элементы с учетом отступов, толщины режущих материалов и других тонкостей. Правда, некоторые нюансы все равно нужно согласовывать с мебельщиками, так что карту раскроя лучше доверить им – они лучше разбираются в этих вопросах, а при раскрое будут учитывать имеющийся у них инструмент.
В качестве примера рассмотрим изготовление шкафа-купе высотой 2,5 м, шириной 1,2 м, глубиной 0,4 м. По расчетам выходит, что для его изготовления понадобятся два листа ДСП площадью по 4,08 м2 и лист ДВП площадью 4,67 м2.
На что следует обратить внимание при изготовлении шкафа-купе?
При выборе цвета не стоит ориентироваться на названия вроде «Орех миланский» и т.д. У каждого производителя свое понимание того, как выглядит этот самый орех, а единых стандартов не существует. Так что лучше всего пойти и самостоятельно выбрать цвет материала, ориентируясь по его виду, а не по названию.
После того, как в мебельном цеху будут вырезаны все элементы шкафа, Вам могут предложить забрать с собой обрезки листов, из которых они вырезались, ведь лист Вы покупали целый, значит и обрезки Ваши.
Если они Вам не нужны, мебельщики оставят их у себя, сделав Вам небольшую скидку. Такое решение многим кажется более привлекательным. Вроде и от мусора избавились, еще и деньги сэкономили. Но это не совсем так. В процессе сборки могут повредиться какие-то элементы, и Вы сможете из обрезков сделать им замену.
Если же отдельную деталь заказывать в мастерской не из своего материала, можно переплатить до 25% стоимости.
Еще один нюанс. Оплачивать нужно не изготовление каждой отдельной детали, а распил листа. На первый взгляд кажется, что это одно и то же, на самом же деле это не совсем так. Поэтому при расчете количества исходного материала нужно четко определить количество листов и уже их отдавать на распил.
Программы типа Базиса помогут определиться с вопросом расхода материалов быстро и безошибочно. Подсчеты вручную же часто дают неточные результаты, особенно, если деталей много.
Отдельная статья расходов – изготовление фигурных элементов, например, боковых полок с округленным углом или плинтусов. Стоимость таких распилов выше, чем распилов простой прямоугольной формы, что нужно учитывать и согласовывать заранее, чтобы потом не было недоразумений при оплате.
Подведем итоги. Расходы на изготовление деталей в мастерской состоят из:
- составления карты раскроя (все же лучше это доверить мастерам);
- распила листов ЛДСП и ЛДВП;
- изготовления плинтуса;
- изготовления закругленных элементов.
Как сделать шкаф-купе своими руками: чертежи и этапы устройства
Можно сделать гарнитур самостоятельно, но для этого потребуются знания об особенностях проектирования. Шкафы-купе не так легко изготовить своими руками даже если есть описание, чертежи и пошаговая инструкция. Но не спешите расстраиваться. Рассмотрим все тонкости рабочего процесса.
Замеры помещения и расчёт размеров встроенного шкафа-купе своими руками
Выполнить проектирование и расчет дверей-купе поможет программа «Аристо».

Необходимо выполнить следующие измерения:

Чтобы рассчитать глубину шкафа необходимо вычислить полезное пространство, а также учесть максимально допустимые размеры. 100 мм нужно учитывать при планировании раздвижной системы для шкафов купе. Высота мебели должна быть на 100 мм меньше, чем расстояние от пола до потолка.

Распил и фурнитура
Перед тем, как самому сделать шкаф-купе, сначала нужно написать перечень всех деталей на листке. Со списком можно обратиться в цех, где сделают раскрой и порежут материал. Сделать распил можно и самостоятельно, но это более сложный вариант. Необходимо разложить детали и рассчитать количество листов ЛДСП.
Системы скольжения состоят из профиля и скользящей опоры. Роликовые механизмы могут быть осевыми или на подшипниках.

Выбор наполнения шкафа
Внутреннее наполнение помогает решить и какой будет компоновка. Не стоит секцию для верхней одежды размещать по центру, так как влага от нее может распространиться в стороны. Лучше расположить этот отсек сбоку. Ящики для постельного белья не рекомендуется размещать сразу над полом.

Как правильно скомпоновать элементы и как собрать шкаф-купе своими руками можно посмотреть в видео ниже:
Watch this video on YouTube
Количество и размеры дверей, направляющие, ролики для шкафа-купе
Лучшим решением будет использование комбинированных рельсовых направляющих, в которых опорная поверхность для роликов из металла.

Стальной профиль для дверей-купе обладает повышенной надежностью. Из алюминия делаются рельсовые опоры для мебели известных брендов.
При планировании дверей нужно рассчитать ширину створок. При этом в закрытом состоянии должна быть видна одна ручка, но она не должна закрывать дверное полотно.

Ролики делают из металла, так как пластик не отличается прочностью. Ролик содержит шарикоподшипниковый внутренний механизм, позволяющий свободно перемещать двери в горизонтальном направлении.
Сборка шкафа и двери купе своими руками
Предлагаем вам ознакомиться с процессом сборки шкафа-купе своими руками в таблице ниже:
| Фото | Описание работ |
![]() |
Чтобы выполнить сборку шкафа-купе необходимо нанести разметку. Нужно отметить габариты шкафа по ширине и место расположения вертикальной стойки. Отмечаются высоты, на которых будут фиксироваться полки. |
![]() |
Сверлим отверстия для дюбелей. |
![]() |
Профиль надевается перед монтажом. |
![]() |
Устанавливаем вертикальную стойку. |
![]() |
Наносим разметку для антресольной полки и устанавливаем её. |
![]() |
Устанавливается боковая стенка. |
![]() |
Выполняется разметка под полки и их установка. |
![]() |
Размечается по размеру и устанавливается штанга для одежды. |
![]() |
Устанавливаются фальш-панели. |
![]() |
Одна панель фиксируется в нижней части. |
![]() |
Крепится опорная верхняя часть. |
![]() |
С помощью шурупа фиксируется нижняя направляющая. |
![]() |
Аналогично крепится и верхняя направляющая. |
![]() |
Монтируются двери. |
Более наглядно процесс представлен в этом видеоролике:
Расчет деталей шкафа купе
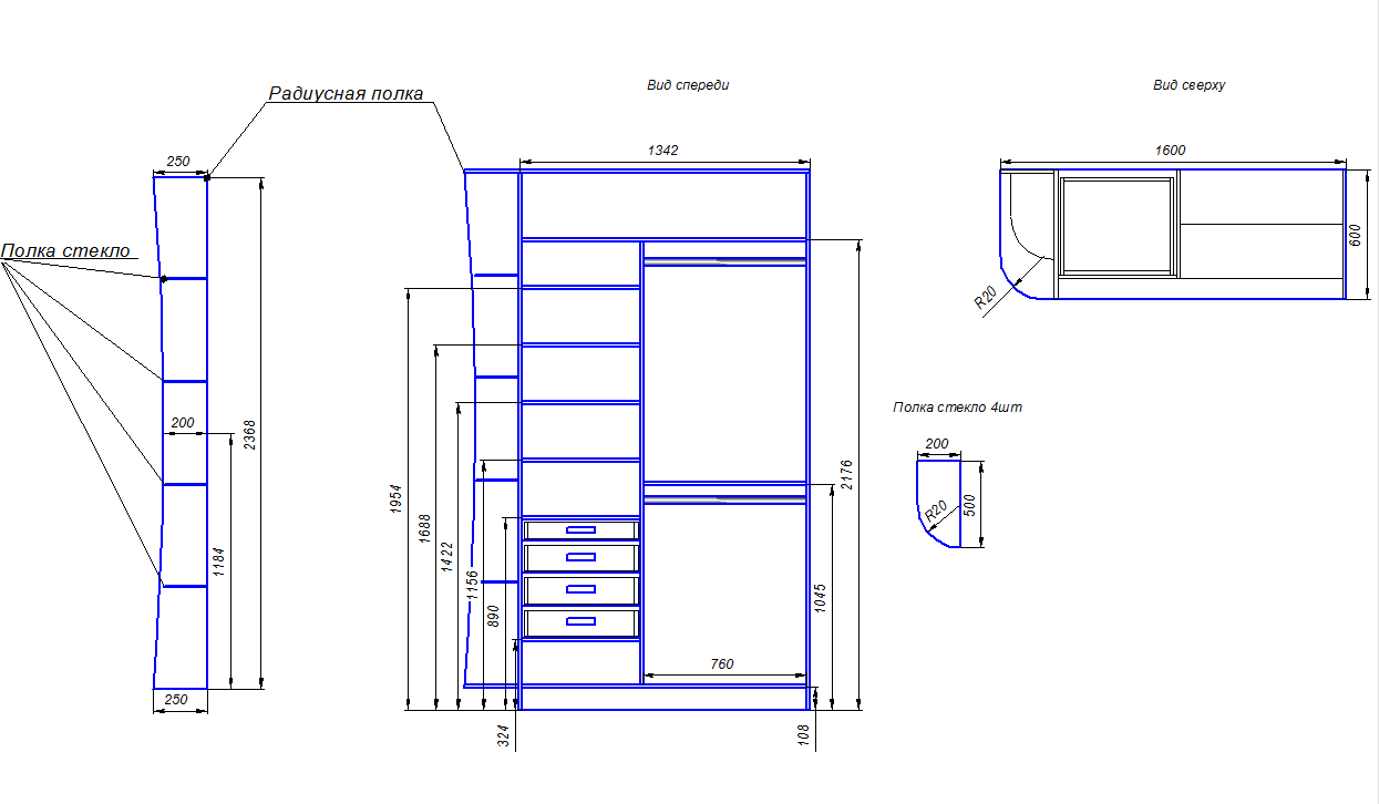
Для удобного расчета комплектующих шкафа нам понадобится его рабочий чертеж.

Скачать:Чертеж шкафа-купе
Если вы не делали электронный чертеж, а рисовали его на бумаге, то вам будет немного тяжелее с расчетами, т.к. нужно будет все детали просчитывать на калькуляторе с помощью вычислений. Но и это реально выполнить. Многие ветераны мебельного производства и сегодня делают деталировку проекта только по расчетам и вычислениям.
Итак, наша задача составить список деталей с указанием их длины и ширины, с учетом всех необходимых отступов и зазоров.
Чтобы не запутаться, можно начать с перечисления комплектующих наружного короба, а потом постепенно перейти к более мелким деталям.
- В Excel файле забиваем название детали, ее длину и ширину (длина определяется по направлению структуры рисунка ДСП).
- Далее указываем обозначение кромок по длине и ширине детали. Клеиться могут как обе стороны, так и одна, или вообще без кромки. Кромкой клеить следует видимые торцы. Те грани, которые будут стыковаться с другой деталью, кромковать не нужно.
- При определении размера детали учитывайте толщину кромки. Если будет клеится кромка ПВХ толщиной 1 мм – сразу вычтите этот миллиметр с общего размера.
- В следующей колонке укажите количество комплектующих (в случае если они одинаковые и по размерам, и по кромкованию сторон).
- Далее забивается толщина материала и название плиты (например «ДСП венге», « ДСП береза майнау» «ДВП белое» и т.д.) Если шкаф делается из разных плит ДСП, то в строке напротив каждой детали нужно указывать материал, из которого она будет изготовлена.
Важные зазоры и отступы:
- Зазор на кромку, в зависимости от ее толщины, 1-2 мм,
- Внутренние комплектующие шкафа по глубине на 100 мм меньше глубины наружного корпуса,
- Если полки шкафа съемные, они кромятся со всех сторон. По ширине съемные внутренние полки должны иметь по 1 мм зазора с каждой стороны (это уже с учетом кромки),
- На фасаде выдвижного ящика делайте минимум по 1,5 мм зазор с каждой стороны (это уже с учетом кромки),
- Задняя стенка шкафа – ДВП. Она накладывается сзади и по размерам меньше на 1 мм от края с каждой стороны,
- Высота цоколя – до 100 мм.
Как рассчитать стоимость шкафа по размерам деталей
Из каких расходов складывается стоимость шкафа?
- Корпус. Расход листового материала – ДСП и ДВП – подсчитывается при составлении карт кроя. Также необходимо подсчитать количество кромки для оклейки видимых торцов.
- Фасады. Чаще всего рассчитывается квадратура фасадов, поскольку большинство производителей мебельных фасадов озвучивают стоимость за квадратный метр.
- Крепеж. В мебельном производстве с изготовлением под заказ редко точно подсчитывают стоимость мелкого крепежа (метиз) в виде конфирматов, саморезов, гвоздей, полкодержателей и т.д. Обычно «покрывают» эти расходы, накидывая 10% на стоимость листового материала. Или формируют примерный комплект метиз на одну секцию, 100-150 рублей. К примеру, в рассматриваемом для расчетов шкафу – 2 секции. Значит, на мелкий крепеж достаточно заложить сумму в 200-300 руб.
- Фурнитура. Помимо крепежа, с помощью которого соединяется вся конструкция шкафа, требуется покупка функциональной и лицевой фурнитуры (о видах комплектующих можно прочитать здесь).
Составление карт кроя
После того, как список деталей для изготовления шкафа своими руками составлен, нужно рассчитать, сколько листов ДСП понадобится для этого. Формат ДСП может быть разным – соответственно, разнится и стоимость за лист, и расход материала. Это может быть 2750х1830, 2440х1830 и т.д.
Можно установить специальную мебельную программу раскроя (например, любую версию Cutting) и вбить размеры деталей с указанием количества в отведенные ячейки формы. Будьте внимательны и не «переворачивайте» детали, сначала записывается длина, потом ширина.
Одно нажатие и программа выдаст вариант расположения деталей на листах ЛДСП заданного вами размера.
Впрочем, для шкафа составить карты кроя можно и вручную. Поскольку все основные детали идут одной ширины, равной глубине шкафа, сделать это не так уж сложно.
Вычерчиваются заготовки, в масштабе листа ЛДСП. Поскольку лист приходится обрезать по краю (нередко внешние торцы сбиты) и пил имеет свою ширину, размеры требуется округлять. Например, до 2400х1800 при 2440х1830.
Затем лист «распускается» по длине на ширину заготовок.
В полученные полосы «раскладываются» детали. Сначала самые длинные (боковины, перегородки), затем на остатки короткие (полки).
«Невидимые» детали можно вращать (располагать поперек), для минимизации расходов. Например, ребра жесткости, детали ящиков, усилители дна и т.д.
Подсчет количества кромки
Ламинированное ДСП после распила имеет необработанные торцы. Все видимые оклеивают кромкой: меламиновой или ПВХ разной толщины. Первую можно наклеить с помощью утюга, в домашних условиях. Кромка ПВХ более трудоемка в наклейке, как правило, для этого требуется специальное оборудование.
И та, и другая кромка продается метражом. Работа по наклейке также оценивается по количеству погонных метров. Значит, для расчета стоимости (как закупки, так и наклейки) требуется знать погонаж.
Сделать это довольно просто. Закатываются кромкой только видимые торцы. А в шкафу «видны» только внешние края деталей. Для простой конструкции, имеющей внутри только полки и перегородки, достаточно сложить все длины деталей, чтобы получить искомую величину.
К полученной цифре добавляется кромка по глубине шкафа (от боковин) и деталей выдвижных ящиков.
11,41+0,6*2=12,61 (м.п.)
Общее значение увеличивается на 10%, поскольку при оклейке кромка разрезается с запасом, и округляется в большую сторону до целого числа.
12,61*1,1=13,87 округляем до 15 м.п.
Составление общей сметы на закупку материалов и фурнитуры
Обычно это делают также с помощью excel. В табличную форму входят наименования материалов корпуса, фасадов, перечень фурнитуры, комплектующих и метиз, с указанием требуемого количества и закупочной стоимости.
Как они работают?
Всё очень просто.
В первом окне, которое открывается закладкой «Параметры», вводим исходные данные: размер проёма, в который будут встраиваться двери-купе, количество дверей, мест перекрытий, количество зеркальных дверей и глухих, количество межсекционных планок и т.д.

Во втором окне, «Ламинат», вводим размеры деталей корпуса. Это, практически, делается автоматом из любой мебельной программы: PRO100, bCAD, Астра Конструктор и другие.

В третьем окне, «Комплектующие», — вводим набор необходимой фурнитуры. Фурнитуру Вы можете вписать и свою, аккуратно прописав название и цену нужной фурнитуры.
В итоге, мы получаем конечную стоимость изделия, которая отображается в окне «Параметры» и в окне «Смета», и, открывая окно «Детали», мы имеем рабочие размеры наполнения в двери-купе, а именно зеркала и глухой панели, и профилей, горизонтальных и вертикальных.
Это очень удобно и значительно облегчает жизнь рядовому мебельщику.А главное, всё — просто.
Таблица предварительного расчета
Уважаемые Дамы и Господа, точную стоимость вашего заказа смогут дать только наши менеджеры, после проведения замера помещения, если у Вас возникли какие-либо вопросы, Вы можете задать их по телефонам: тел: (495) 729-6787, (495) 310-5663, тел/факс: (499) 619-2073 или по электронной почте
АКЦИЯ !!!»ШКАФ-КУПЕ ПРИЕДЕТ К ВАМ»
Один звонок по телефону и Вы, не выходя из дома, получаете: детальный расчет заказа, опытного дизайнера-проектировщика, образцы всех материалов, грамотное оформление заказа, качественную доставку, квалифицированный монтаж и скидку 15% на ваш заказ.
Звоните прямо сейчас, предложение ограничено!(495) 729-6787, (495) 310-5663, тел/факс: (499) 619-2073Либо один раз заполненный и распечатанный купон, предъявленный в салоне, обеспечит скидку 5%































































