Необходимые материалы
Для изготовления стола-кровати можно использовать разные материалы, в зависимости от ваших предпочтений и финансовых возможностей
Но лучше остановить внимание на (Л)ДСП или МДФ. Первый материал (ламинированная древесно-стружечная плита) – более дешевый, второй (плита мелкодисперсной фракции дерева) – дороже, надежнее и с ними проще работать
Толщина плит должна быть не менее 20 мм. Именно из них изготавливается основной каркас, а также лежанка и стол.
В качестве задней стенки можно использовать обычную фанеру, или не использовать вообще ничего, потому что конструкцию следует ставить у стены (а еще лучше – закрепить к стене, точно также, как крепят шкафы).
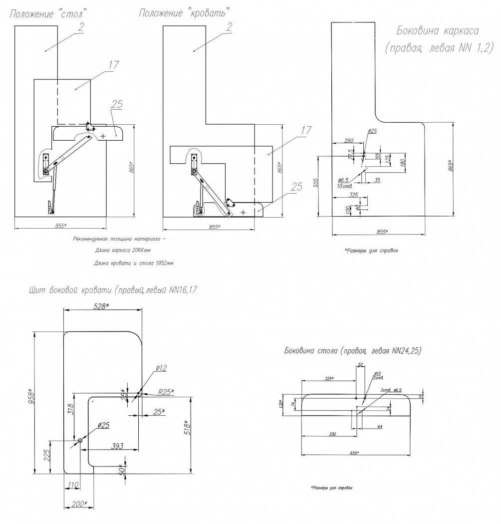
Главный материал – трансформационный механизм, который так и называется – механизм стол-кровать трансформер 591. Его можно приобрести в специализированных магазинах или заказать у поставщиков. Цена в среднем колеблется от трех с половиной до четырех тысяч рублей.
Механизм стол-кровать трансформер 591
Механизм состоит из:
- парные узлы силовой тяги (именно они поднимают и опускают столешницу и лежанку);
- две газовые пружины (или газлифты – помогают нам поднимать и опускать стол-кровать и фиксируют части в конечном положении);
- парные шплинты, гайки и шайбы (для крепежа механизма к корпусу стола-кровати);
- планки, втулки, накладки, узлы фиксатора (фиксируют стол и кровать в разложенном/сложенном положении);
- набор саморезов.
Кроме этого, вам понадобится набор стандартных инструментов – дрель, шуруповерт, электролобзик.
Предметы мебели
Несколько примеров меблировки кухни, объединенной с гостиной:
- 1. Диван. Он становится предметом, который зонирует пространство. Диван ставят спинкой к тому месту, где готовят еду. В небольшие комнаты (менее 20 кв м) ставят уголок, который располагают у стены, установленной перпендикулярно или параллельно от кухни.
- 2. Гарнитур. По мнению дизайнеров, минималистичные модели без вычурных деталей смотрятся современно. Сервиз, вазы или бокалы ставят на открытой полке. Для них можно купить модную витрину. Мебель ставят возле стены. Если пространство большое (20 кв м, 25 кв м или 30 кв м), то в центральной части можно установить остров, в котором есть и отделы для кухонных приборов.
- 3. Комплект мебели. Стиль должен сочетаться с оформлением обеих комнат. В малогабаритных помещениях хорошо смотрится компактный столик и стулья, сделанные в из прозрачного материала или окрашенные в светлые цвета. В интерьер гостиной можно поставить стол с круглой столешницей. В просторных помещениях комплект устанавливают возле стенки или в центральной части. Здесь будет хорошо смотреться вытянутый обеденный стол прямоугольной формы.

Материалы изготовления
Кроме типа раскладного механизма кровати, ее внешних качеств, покупателя должен заинтересовать вид материала, из которого она изготовлена. По средствам наиболее доступными станут конструкции из ДСП, МДФ-досок. Но необходимо помнить, что клей, который используется при производстве мебельных изделий из них, может спровоцировать аллергические реакции.
Экологичные деревянные варианты из массива бука, сосны, дуба, других пород хоть и в цене, но их отличает высокая прочность, способность служить долго.

Безусловным лидером на рынке являются кровати-шкафчики, столики, портативные банкетки и кресла, в которых каркас выполнен из железа. Изделиям не нужен дополнительный уход, не страшны вредители, по сравнению с моделями, выполненными из других материалов, они более надежны, безопасны. Единственный минус – их тяжелый вес.
Еще один из популярных материалов – пластик. Он не боится влаги, хорошо противостоит механическому износу.

Декорирование
Балдахин
Многие считают, что балдахин не слишком практичная вещь, ведь он накапливает слишком много пыли, и его необходимо постоянно стирать. Тем не менее, при отсутствии этого элемента вся эта пыль оседает на кровать, а ребенок ею дышит. К тому же балдахин способен уберечь чуткий сон малыша от солнечного света и настырных насекомых. Этим все сказано: подобная накидка в детской необходима. В её качестве обычно используют натуральные ткани:
- муслин;
- шелковую вуаль;
- хлопчатобумажную вуаль;
- шелковую органзу;
- шифон.
Как и кроватку, балдахин тоже можно сделать своими руками. Для этого воспользуйтесь нашей пошаговой инструкцией с фотографиями.

Постельные принадлежности
Чтобы сшить наволочку, простынь и пододеяльник, лучше всего использовать натуральные, дышащие и вместе с тем красивые ткани. Сюда отлично подойдут: фланель, бязь, сатин, поплин.

Наматрасник
Чтобы защитить матрас от влаги, обычно используют водонепроницаемый наматрасник. Причем его несложно сделать самостоятельно. Для этого изготавливают конструкцию, состоящую из клеенки (внутренняя часть) и трикотажного, фланелевого или ситцевого полотна (наружная часть). Для того чтобы наматрасник не соскальзывал, по периметру изделия пришивают резинку.
Одеяло
Выбор подходящего размера, цвета ткани и вида наполнителя – несомненный плюс любого сшитого своими руками детского одеяла. Интересный вариант – лоскутное одеяло
Необычные рисунки и фактура будут радовать малыша и привлекать его внимание. Самостоятельный пошив не займет много времени
Для изготовления подойдут лоскуты любой формы и расцветки.
Подушка
Тут следует помнить, что подушка для маленького ребенка не должна быть слишком большой. Оптимальное решение – изделие в форме животного или насекомого. В качестве наполнителя обычно используют холофайбер, микрофайбер, вату, гусиный пух или бамбуковое волокно.
Вдохновите нас — поделитесь материалом с друзьями в соцсетях:
Реальные фото детских комнат:
Стол-кровать
Этот вид мебели особенно актуален для детских комнат. Прежде всего, два предмета мебели совмещаются в одном, значительно экономя пространство, так необходимое для ребенка. Кроме этого, ребенку без сомнения понравится такая необычная кровать.
Сложный составной механизм, связывающий между собой каркас кровати и стол, позволяет легким усилием трансформировать конструкцию в два положения – кровать и стол. Осуществить переход из одного положения в другое на практике оказывается гораздо легче, чем разложить диван-книжку.
Цена на качественные трансформеры от производителей довольно высока. Но при определенных навыках работы с деревом и такими инструментами, как дрель и шуруповерт, а также терпении и усердии, вполне можно собрать умную кровать самостоятельно.
Сделать обычную кровать своими руками не составляет труда. Если у вас уже есть опыт изготовления домашней мебели – это очень хорошо. Но нужно помнить, что мы собираем два разных предмета мебели, соединенных довольно сложным механизмом трансформации. Поэтому здесь скорее пригодится опыт самостоятельной сборки раскладных диванов.
Конструкция
По типу конструкции кровать трансформер бывает:
-
вертикальной. Такое изделие представляет собой двухметровый шкаф, изголовье которого закреплено на стене, а спальное место прячется в дневное время в шкафу;
- горизонтальной. Такие модели оснащаются односпальной кроватью, прикрепленной к стене боковой стороной;
- выкатной. Это самые распространенные модели, у которых нижняя встроенная часть выезжает и формирует просторное спальное место. Такие модели подходят как для обустройства детских комнат, так и взрослых спален;
- подъемной. Данное изделие оснащается пневматическим механизмом, который с легкостью позволяет убирать кровать в нишу стенки или шкафа.
Помимо этого кровать трансформер бывает пуфом раскладушкой. То есть, в сложенном виде изделие представляет собой обычный пуф, а в разложенном – небольшое спальное место. Популярны и круглые кровати-трансформеры, которые идеально подходят для маленьких детей. Они отличаются безопасностью, так как в них отсутствуют острые углы.
Справка: детские модели часто комплектуются не только спальным местом, но и диваном, комодом и рабочим столом.

Если в семье двое деток, рекомендуется установить в комнате двухъярусную кровать-трансформер. Данная конструкция имеет один механизм, с помощью которого изделие складывается и раскладывается.
Что касается дополнительных возможностей, то кровати-трансформеры являются уникальными и универсальными:
- кровати для взрослых могут трансформироваться не только в шкафы и диваны, но и столы, комоды, закрытые полки;
- детские модели оснащаются: пеленальными столиками, комодами для вещей, выдвижными ящиками. Такие изделия можно дополнить подсветкой или балдахином.
Схема сборки кроватки-транформера
Для начала нужно купить все необходимые материалы. Чаще всего кровати-трансформеры делают из дерева, ведь оно экологически чистое. Из инструментов нужна только отвертка. Все необходимые крепления продаются в комплекте с кроватью. Процесс сбора конструкции таков:
Для начала сделайте проект с чертежами.
Приготовьте место, где будет стоять кровать. Застелите его светлой тканью, чтобы не потерять мелкие детали (болтики и винтики).
Соберите каркас для кровати. Для этого соедините нижние борты со спинками. Зафиксируйте каркас, чтобы он не согнулся в процессе работы.
Для начала нужно прикрепить неподвижную стену к обеим стенкам кроватки. Все необходимые крепления идут в комплекте
Обратите внимание! Правильно установите верх и низ стенки.
Теперь займемся местом для сна. Очень часто оно уже готовое, в виде ложа, и его осталось просто положить
Но если ложа нет, значит, оно в виде ламелей. Их нужно вставлять в пазы на боковушках и прикрепить винтиками.
Теперь необходимо установить фасадную стену
Важно, чтобы она была подвижной. Все скрепляется винтиками.
Теперь необходимо собрать тумбочку из деталей в комплекте
Ее закрепляют винтиками. Она будет стоять на уровне кроватки.
Теперь нужно собрать второе дно для маленькой кровати.
Необходимо еще раз проверить все решетки по бокам.
Если конструкция на колесах, ее нужно перевернуть, чтобы монтировать колеса в пазы.
При наличии маятниковых полозьев, их нужно собрать и установить.
Собираем ящики, где будет храниться одежда и другие предметы для малыша.
Прикрепляем боковую стенку (там, где ящики).
Устанавливаем ящики.
Ставим конструкцию на маятник. Не забываем о фиксаторах.
Закрываем все винтики и гайки заглушками (чтобы малыш не поцарапался во время сна).
Прикручиваем к тумбочке столик, где мы будем менять пленки малыша.
Собираем все полочки и вставляем их в конструкцию.
Сборка кроватки-трансформера завершена. Осталось только приготовить постель для малыша.

В зависимости от выбранного комплекта, возможны небольшие отличия в сборке. Чаще всего, вместе с комплектом идет инструкция, которая поможет собрать кровать.
Изготовление дивана-трансформер своими руками
Сделать диван-трансформер своими руками на самом деле несложно, зато польза от него очевидная. С ним каждый квадратный метр жилого пространства будет использоваться рационально, при этом не нарушая комфорта и уюта. Смастерить такую мебель просто, главное — составить правильные чертежи, подготовить необходимые комплектующие и детали, потом собрать их в одну конструкцию при помощи столярных инструментов.
Инструменты и материалы для изготовления дивана-трансформера вам будут необходимы такие:
- Доски из МДФ толщиной 20 мм.
- Прочная фанера.
- Петли.
- Мебельные гвозди.
- Винты.
- Сверла.
- Круглая пила.
- Отвертки.
- Наждачная бумага.
- Шлифовальный уголок.
- Карандаш.
- Рулетка.
Перед началом работы следует грамотно составить чертежи и проект, указать количество, типы и размеры всех деталей. В нашем случае конструкция будет представлять собой специальное основание и несущую коробку.

Пошаговая сборка дивана-трансформер
Необходимо сделать следующее, чтобы получить удобный диван-трансформер:
- Возьмите две несущие доски, соедините их с помощью винтов, снизу скрепите поперечной доской. Вверху усильте прочность конструкции поперечным брусом, установите его, прикрепите сбоку от несущих стоек. Такую же доску расположите в передней части короба.
- К торцевой части мебели-трансформер с помощью крепежей прикрепите боковую обшивку. Такие же действия проделайте с верхней частью короба.
- Переднюю стойку мебели-трансформер закрепите, чтобы завершить монтаж основания будущего дивана. Сначала прикрепите поперечный брус, потом относительно него установите сверху короба торцевую доску.
- Лист фанеры предварительно усильте вертикальными досками, чтобы он не прогибался, а потом прикрепите к коробу.
- Из крепкого листа фанеры, который имеет по бокам треугольные поперечины, изготовьте откидную часть конструкции. Скрепите детали горизонтальной доской в торцевой части. В качестве крепежных элементов можно использовать саморезы.
- Соедините обе части мебели-трансформер между собой.
Кроватка-трансформер: советы по сборке
Во время выбора кроватки-трансформера следует обратить внимание на следующее:
- Безопасность. Необходимо убедиться, что материалы экологически чистые. Днище должно быть реечное, чтобы кровать могла дышать. А между прутьями не должно быть большое расстояние, чтобы туда не поместилась голова ребенка.
- Кроватки могут быть на колесах, ножках и полозьях. У всех вариантов есть свои преимущества и недостатки.
- Для новорожденных детей подойдут колыбельки.
- Детские кроватки-трансформеры очень популярны на современном рынке, поскольку они не только похожи на стандартные кровати, но и имеют места внутри, где можно хранить предметы для ухаживания за малышом.
Рекомендации по использованию
Старые малогабаритные квартиры, жилье нового формата, которое в интернет и на телевидение вошло под именем смарт-квартиры, требует максимальной рациональности в подходе к планировке. Современная квартира-студия, размещенная на площади до 20 кв.м., имеет полноценные функциональные зоны, где грамотно подобран не только цвет. Симбиоз гостиной с кухней и спальней как нельзя лучше воплотит трансформирующаяся многофункциональная мебель.
Шкаф-кровать часто украшают принтом, зеркалом. В малогабаритных квартирах и студиях устанавливают шкаф-комод. Существует множество вариантов для детских комнат: от кроваток с пеленальными столиками, оборудованных удобными ящиками, до двухъярусных кроватей для школьников.
При необходимости поработать в офисе ночью, там размещают компактные трансформеры-пуфы или скамейки. Занятой руководитель может поспать прямо на своем рабочем месте, просто перевернув письменный стол, под крышкой которого днем прячутся мягкий матрас и подушка.
Откидная кровать или расположенная в шкафу обеспечит мобильность интерьера спальни взрослых. Выкатная модель для детей удобна, экономит полезную площадь. Крутое решение для комнаты подростка – кровать-трансформер, которая становится удобным рабочим местом для подготовки к школе, для юной швеи – столом для раскроя.


















































