Кровать начального уровня
Кровати упрощенной конструкции, в которых спинки входят в силовую схему, а ножки выполнены заодно с ними, для взрослых делают только эконом-класса. И то, ножки отделяют от спинок и ставят сбоку вплотную к ним, чтобы образовался угол, придающий изделию хотя бы минимальную жесткость. Но все равно, где-то приходится ставить и дополнительные подпорки, опирающиеся прямо на пол, что не оптимально, см. далее. Чертежи кровати такого типа, рассчитанной на умеренно интенсивную эксплуатацию в течение 10-12 лет, приведены на рис. Передняя спинка/стенка отличается от задней только отсутствием декоративной надставки. Материал спинок ЛДСП, лежака – фанера; остальное – дерево. Сборка на саморезах по дереву и стальных уголках. А мы пойдем дальше, к кроватям, способным выдержать бабушку со множеством любовников и ее потомство.

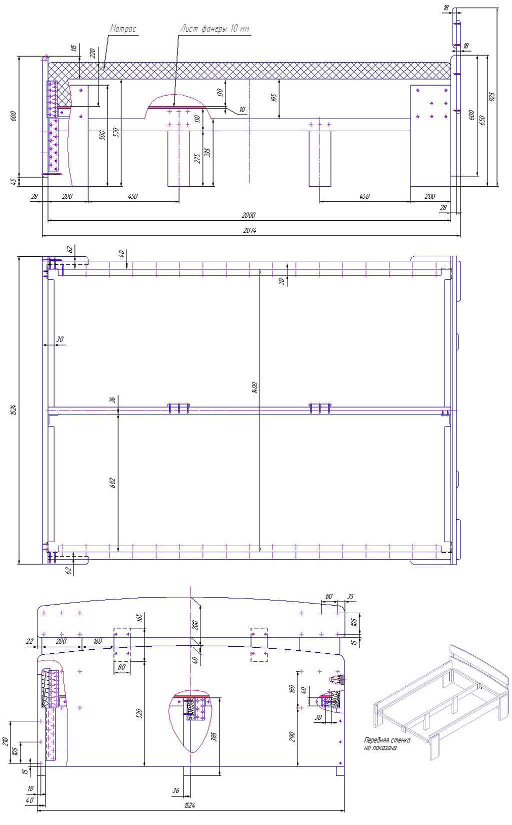
Чертежи самодельной двуспальной кровати
Выбор постельного белья
Любой человек во время сна набирается сил, а малыши еще растут и развиваются. Каждый родитель хочет сделать этот момент спокойным. В данном вопросе им помогает постельное белье, которое должно быть качественным, изготовленным из натуральных материалов. Для этих целей используется следующие типы ткани:
- хлопок,
- ситец,
- сатин,
- бязь,
- лен,
- бамбук.
Цвет выбранного полотна должен быть нейтральным, лучше использовать пастельные, светлые тона, располагающие ко сну. Для новорожденных подойдет изделие без рисунка, детям постарше, но не подросткам — белье с принтом любимых героев из мультипликационных сериалов
Также при выборе постельных принадлежностей стоит обращать внимание:
- материал не должен терять свою структуру и цвет от частых стирок;
- не стоит брать белье с пуговками, ленточками, кружевами;
- наполнитель следует выбирать из пуха или шерсти;
- использовать разные ткани по сезону.

Изготовление и сборка кровати-машины
От такой конструкции дети будут в восторге. Изготовить ее под силу каждому. Для этого потребуется составить чертеж или скачать его в сети. После чего можно приступить к выкройке составных частей и сборке. Работа состоит из следующих этапов:
- Из мебельного щита изготавливаются боковые и передние стенки.
- На боковых поверхностях делаются вырезы, имитирующие двери автомобиля, через которые ребенку будет удобно попадать внутрь.
- На одной из торцевых частей с помощью электролобзика аккуратно вырезаются отверстия под фары и радиатор.
- Далее выкраивается еще несколько дощечек, имитирующих капот машины, лобовое стекло.
- Подготавливаются колеса.
- К боковым стенкам крепятся деревянные уголки, на которые укладывается основание для матраса.
- Из подготовленных деталей собирается прямоугольная рама, которая устанавливается на колеса.
- Полученная заготовка окрашивается или лакируется.
- Внутри каркаса фиксируется основание, укладывается матрас.

Как сделать большую подъемную кровать своими руками
Работы начались с поиска самого важного узла подъемной кровати — петель. Были рассмотрены различный варианты механизмов подъема с пружинными петлями, пневмоцилиндрами, противовесами и механические с электроприводом
Выбор пал на применеине самого проверенного и реализуемого способа изготовления подъемной кровати с использованнием механики подъема на основе пружинных петель. Вопрос «как сделать?» кровать своими руками решался уже с выбранным вариантом петель. Петли были выбраны самые мощные, которые удалось найти , производитель гарантировал подъемный вес кровати 200 кг. Марка петель 108/4 , производятся в Италии. Петли были заказаны через интернет. Через месяц транспортная компания доставила посылку весом около 25кг с двумя петлями и выдвижными ножками для кровати.
Петли марки 108/4
Выдвижные ножки кровати
Получение груза и стало отсчетом для начала работ. На следующий день старая кровать была разобрана, старый матрац был выкинут и сразу куплен новый размером 2000×1600×200 мм. Место для мебельного творчества было готово. Может это и неправильный подход, но четкого решения как делать кровать у меня на тот момент не было. Первоначально собирался идти по классическому варианту – изготовление пристенной конструкции, куда и убиралась кровать. Но желание сделать всю кровать из дерева, а не из ДСП плит, сильно удорожало стоимость материалов. Вот тут и пришла мысль использовать два стоящих в комнате шкафа в качестве пристенной конструкции — ниши будущей кровати. Но сначала необходимо было сделать саму кровать. Геометрические расчеты и предлагаемые в ближайшем магазине клеенные доски привели к следующей конструкции подъемной части кровати: боковые стенки из толстых клеенных досок сечением 250×40 мм, торцевые стенки из 25 мм клеенных досок, поперечины из брусков сечение 45×45 мм. Не поленитесь выбирете поперечины без сучков и дефектов волокна должны быть ровные на всей длине бруска! Признаюсь, что не имея опыта мучился сомнениями – выдержит ли конструкция днища будущие нагрузки, и периодически представлял как сломается подо мной кровать ;). Работы проводились по вечерам и в выходные дни прямо в комнате. Итак, последовательность изготовления самодельной подъемной встроенной кровати. К сожалению фото хроника изготовления самодельной кровати велась, но как бывает не сохранилась за маленьким исключением. Схема сборки кровати рождалась в процессе работы по строительству самодельной подъемной кровати.
Двуспальная кровать на подъемном механизме своими руками
Двуспальная кровать, имеющая пространство под спальным местом для хранения вещей – один из самых востребованных вариантов.
Доступ в ящик осуществляется путем использования поднимающего матрас механизма. Для того чтобы модель идеально подходила своему владельцу, вписывалась в комнатный интерьер и подчеркивала вкус хозяина, сделать двуспальную кровать можно своими руками. К тому же, данный вариант поможет существенно сэкономить средства и проявить собственную индивидуальность. Например, в магазине подобная мебель будет стоить не менее 10000 рублей, а материалы, необходимые для собственноручного изготовления – около 6000.

Сделать кровать стандартного размера 1.8/2 метра, имеющую механизм, поднимающий матрас, не так уж сложно. Для этого понадобится:
- Лист ДСП размером 3500/1750 см, толщиной 16 мм;
- Лист Фанеры ФК — 1525/1525 мм;
- Шинил — 5 м/1500 мм;
- Флизелин — 5м/1600 мм;
- Поролон, 2 листа, каждый по 3000/1000 мм, шириной 10 мм;
- Подъемный механизм, имеющий газовые амортизаторы;
- Болты 8 мм, шайбы, гайки;
- Строительный степлер, скрепки (6 и 10 мм).
Если все материалы готовы, необходимо создать чертежи кровати, а затем, согласно им, приступать к изготовлению мебели:
- Согласно чертежу раскроить лист ДСП;
- Сделать центральную перегородку из ДСП высотой 20 см;
- С помощью брусков, расположенных на высоте 20 см закрепить боковые щиты, на которых будет крепиться каркас матраса;
- Из брусьев или фанеры изготовить ламели толщиной более 20 мм;
- По нижней части спинки кровати степлером прибить ткань, а затем, натянув ее по всей поверхности, закрепить со всех сторон;
- Натянуть поролон на каркас конструкции;
- На обтянутом поролоном каркасе сделать разметки для крепления болтов подъемного механизма (на каждую сторону по 4-6 болтов);
- Шинил натянуть на поролон;
- К каркасу прикрутить подъемный механизм;
- Прикрутить ламели;
- Соединить каркасы кровати и матраса, а также спинку изделия;
- Повернуть кровать набок и подбить ДВП ящика;
- Подогнать по размеру листы ДСП;
- Оббить спинку кровати флизелином;
- Сделать подкладку из ткани и закрепить ее на основание каркаса;
- Такой же подкладочной тканью обить каркас матраса.
Вот так, следуя вышеизложенным пунктам можно сделать двуспальную кровать своими руками за пару дней, считая закупку материалов. Деревянная кровать, сделанная своими руками, будет долго радовать глаз владельца, подчеркнет интерьер комнаты, а за счет вместительного ящика, в котором можно хранить одеяла, подушки, покрывала и белье, существенно сэкономит место.
Кровать с ящиками
Данный вариант отлично подойдет для небольшой комнаты, где необходима функциональная мебель, способная сэкономить пространство. Главной отличительной особенностью таких кроватей, является наличие ящиков, которые можно использовать вместо шкафчиков или комода.
Существуют следующие виды моделей с ящиками:
Детская. Изделие с ящиками часто используется в детских комнатах, поскольку позволяет не нагромождать ее лишней мебелью. В ящиках можно хранить игрушки, одежду и другие вещи ребенка. Как правило, такие варианты мебели имеют один большой или несколько средних выдвижных отделений, в зависимости от модели мебели.
Двуспальная. Такая кровать позволяет использовать пространство, расположенное под спальным местом для хранения белья, одеял, пледов, подушек. Главное преимущество этой модели, от мебели с подъемным механизмом в том, что класть и доставать вещи можно, не потревожив лежащего на ней человека.
Капитанская. Данная кровать является одним из самых функциональных вариантов, поскольку имеет 2-3 ряда ящиков, в которых можно хранить все – от постельного белья до книг и одежды. Такая кровать способна заменить небольшой шкаф.
При использовании кровати необходимо учитывать, что перед ящиками должно находиться небольшое пространство, примерно 30-40 см., которое позволит открывать шкафчики и свободно класть туда вещи.
Изготавливаем опоры для реечного дна
Вместо того чтобы смотреть, как сохнет краска, я просверлил направляющие отверстия в 5×10 см досках, которые будут служить опорами для реечного дна. Для этого я вновь использовал Kreg Jig, перенастроив его на большую толщину доски (простая регулировка с помощью торцового ключа-шестигранника).
Чтобы определить местоположение направляющих отверстий, отмерил 5 см от конца бруска, а затем нанес метки через каждые 25 см.
В результате у вас должно получиться так, как на моей фотографии.
Когда краска высохла, я поставил раму на бок, чтобы прикрепить подготовленные бруски.
Используя регулируемый угольник, прочертил линию в 5 см от нижней части рамы.
Щедро нанес столярный клей по всей длине бруска и по его торцам.
Поместил брусок на предназначенное ему место и закрепил 50 мм саморезами по концам и в центре. Затем я перевернул раму и прижал брусок по всей его длине струбцинами. Между бруском и рамой не должно остаться зазоров! Теперь можно прикрутить саморезы во все остальные предварительно просверленные отверстия.
Отметил центр сторон длиною 148.5 см (т.е. 74.25 см от края).
Здесь вы видите 5×10 см брусок, из которого будет сделана центральная поддерживающая балка. Делаю два направляющих отверстия на одном конце и одно отверстие на другом конце.
Подложил под брусок подпорки, чтобы он оказался на одном уровне с прочерченной в 5 см от пола линией (и с двумя другими опорами). Нанес клей и вкрутил саморезы.
Затем я заполнил все отверстия шпатлевкой по дереву. После того, как она высохнет, нужно отшлифовать эти места мелкозернистой наждачной бумагой.





































